• huazhong

    双梁桥式起重机

    您的位置:首页 > 产品中心 > 双梁桥式起重机

    QB型防爆桥式起重机
    QB型防爆桥式起重机
    产品简介:  QB型防爆桥式起重机所有电机、电器防爆性能符合GB3836.2-2000《爆炸性气体环境用电气设备第2部分:隔爆型“d”》、整机性能符合JB/T5897-2006《防爆桥式起重机》标准之规定,经国家指定的防爆产品检验单位检验合格,取得了《防爆合格证》。防爆标志分别为ExdIIBT4、ExdIIC...
    配套服务:
    定制设计
    免费上门测量
    免费上门安装
    24小时销售热线:400-0373-400

    详细介绍

    2

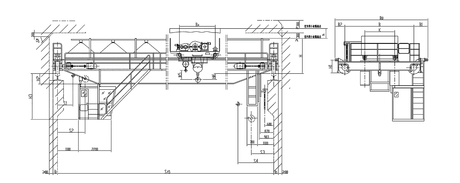
      QB型防爆桥式起重机所有电机、电器防爆性能符合GB3836.2-2000《爆炸性气体环境用电气设备第2部分:隔爆型“d”》、整机性能符合JB/T5897-2006《防爆桥式起重机》标准之规定,经国家指定的防爆产品检验单位检验合格,取得了《防爆合格证》。防爆标志分别为ExdIIBT4、ExdIICT4。

      本产品适用于工厂内防爆能力不高于IIB或IIC级,引燃温度组别不低于T4组的可燃性气体或蒸气与空气形成的爆炸性气体混合物的场所,适用的危险区域为1区或2区(详见GB3836.1-2000)。

      本产品一般为地面操作,根据用户需要也可以司机室操作。工作级别为中级。

      Explosion-proofperformancesofallmotorsandelectriccomponentsofQBexplosion-proofcranesatisfystandardsstipulatedbyGB3836.2-2000Explosion-proofElectricEquipmentWorkinginExplosiveGasEnvircmmentPart2:Flame-proofType“D”,andtheperformanceofthecranesatisfiesdemandsinJB/T5897-1991Explosion-proofCrane.ThecranehasobtainedExplosion-proofCertificateafterpassingexaminationsbyunitsdesignatedbythegovernmenttotestexplosion-proofproducts.Theexplosion-proofmarksareExdIIBT4andExdIICT4respectively.

      Thisproductissuitableforareaswheretheexplosion。transmissionisnothigherthanIIBorIICandtheignitiontemperaturegroupofinflammablegasorexplosivemixtureofsteamandgasisnotlowerthanT4.Applicabledangerouszonesarezone1andzone2(pleaserefertoGB3836.1-2000fordetails).

      Thisproductisgenerallycontrolledontheground,butcontrolfromthedriver’scabinisalsoallowable.Theworkinggradeisintermediate.

      注:5-10t起重机无副钩

      Note:5-10tcranedoesnothaveaauxiliaryhook.


    品牌优势

    生产设备

    相关产品

    相关新闻

    立即咨询

    友情链接:

    百度| 百度| 百度|

    全国统一服务热线

    400-0373-400
    • J9九游会
    • 联系人:韩经理 13937336566
    • 电话:400-0373-400
    • 邮箱:hzqzj@163.com
    • 地址:河南省长垣县位庄工业区

    扫码关注
    版权所有 河南省华中起重机集团有限公司 京ICP证48796266号 
    J9九游会 网站地图